Park Koffiebranderij
Vanaf € 250.000

Brielstraat 2a , 9990 Maldegem
    • delen

Omschrijving Ref.: 7280776

Nieuwbouwproject met zongerichte tuin


Reeds meer dan 60% verkocht!

Binnenkort van één van deze nieuwbouw appartementen uw thuis maken, midden in het centrum van Maldegem? Dit is de kans!

Project Koffiebranderij bevindt zich in het bruisende centrum van Maldegem. Met alle faciliteiten op wandelafstand. Het project bestaat uit 23 appartementen en 4 penthouses. Langs de achterzijde kunt u genieten van een prachtig aangelegde binnentuin. Bovendien zijn de appartementen op het gelijkvloers voorzien van een privé tuintje.

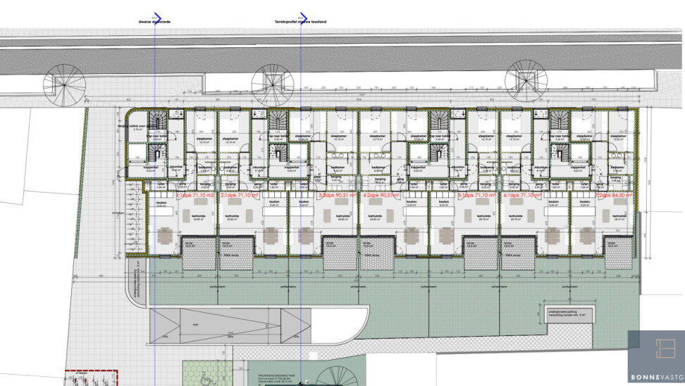
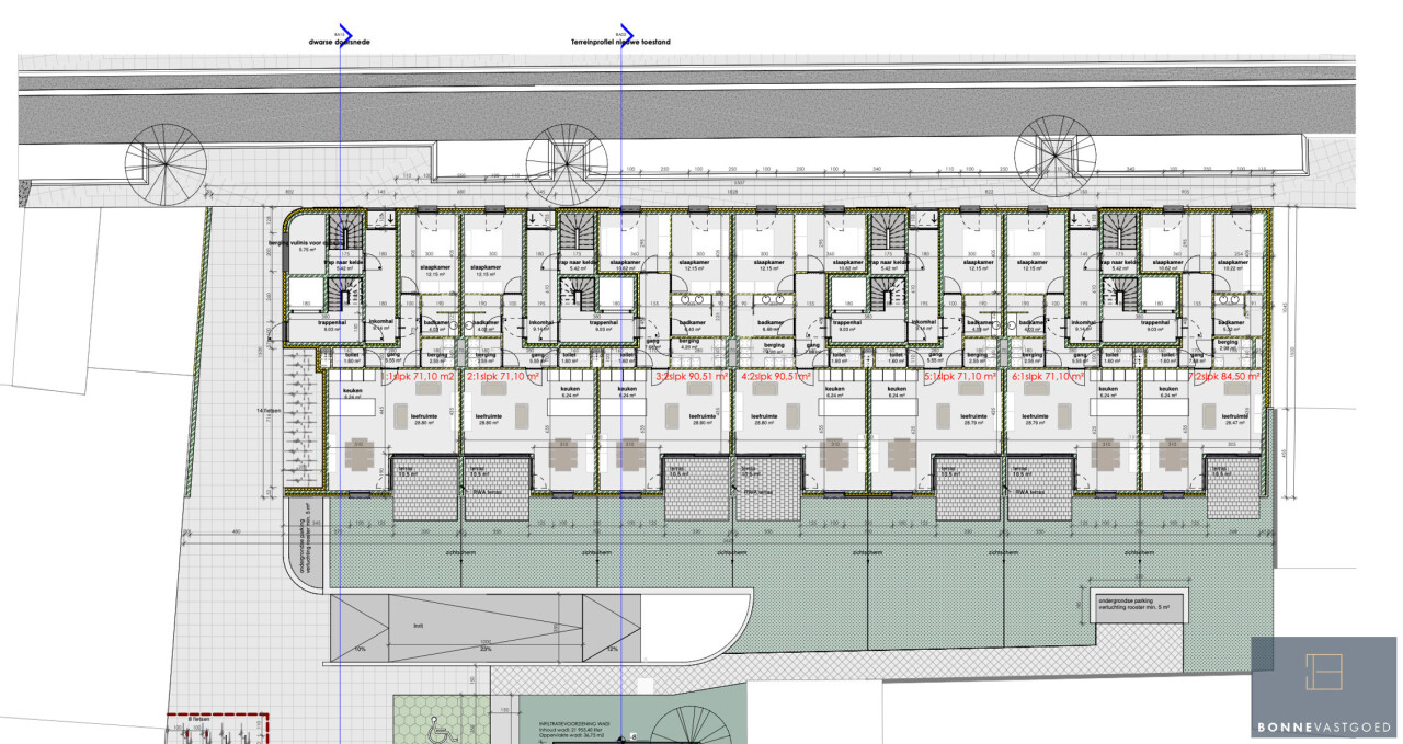
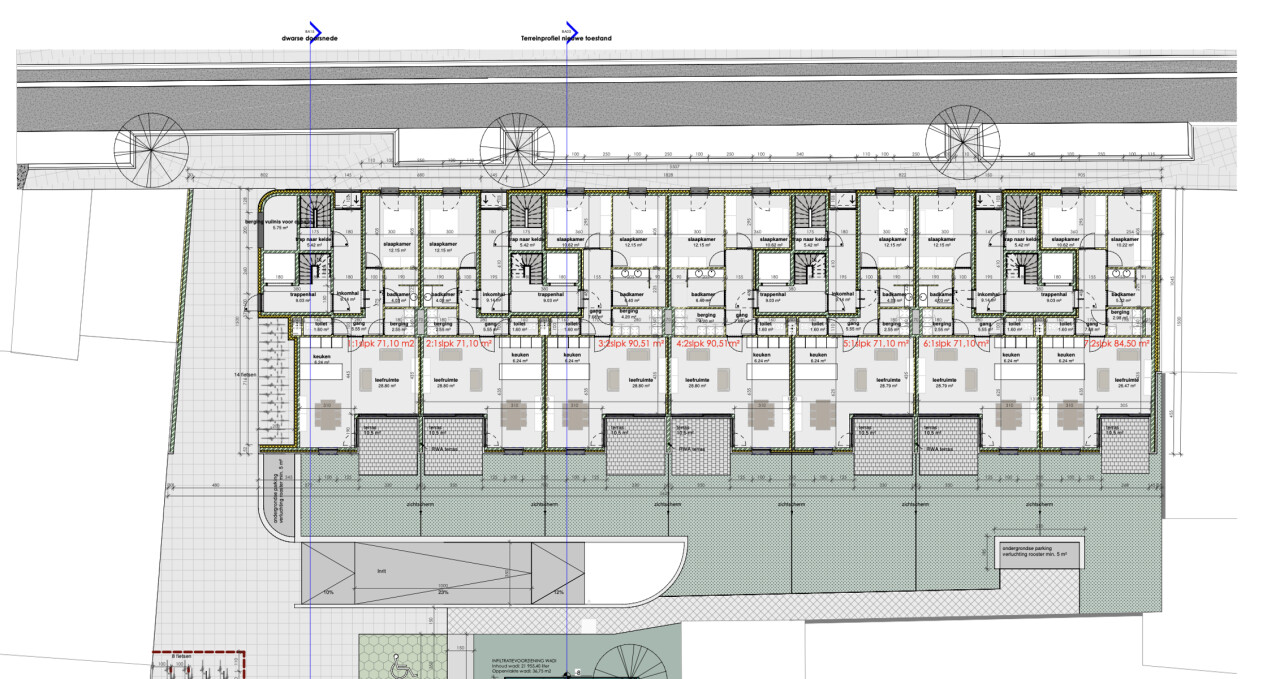
Op de gelijkvloerse verdieping is er nog keuze uit 1-2 slaapkamer appartementen. Op verdieping 1 en 2 zijn dit 2 slaapkamer appartementen.
Deze zullen uiteraard aan alle hedendaagse energienormen voldoen. Ieder appartement is voorzien van GEOTHERMISCHE WARMTEPOMPEN, vloerverwarming met passieve koeling en ZONNEPANELEN. Het gebouw heeft een zuidgerichte oriëntatie waardoor je steeds kan genieten van het zonnetje vanop je terras of in je tuintje.

Ondergronds zijn zowel parkeergarages, staanplaatsen als fietsenstalling terugvinden. Bovengronds wordt nog een extra fietsenberging voorzien met parkeerplaatsen.

Bij aankoop van een appartement is het mogelijk dit helemaal op maat en naar eigen smaak in de richten. U heeft nog de mogelijkheid de vloeren, keuken, badkamer, … zelf te kiezen bij de hiervoor aangeduide leveranciers.
Vloeren/keukens op de foto's zijn ter illustratie van reeds verkocht appartementen.

Nieuwsgierig naar deze tijdloze bouw met grote raampartijen en ultiem comfort?

Contacteer Bonne Vastgoed 7 op 7 voor meer info via 0468/104040 of info@bonnevastgoed.be



Uw contact

Laurenz Bonne +32 468/10 40 40
Vraag meer informatie

Beschikbaarheid

Gelijkvloers

Gelijkvloers kamers oppervlakte prijs
Appartement - 7280823 1 71 m² Verkocht
Appartement - 7280833 1 71 m² Verkocht
Appartement - 7280836 2 91 m² € 329.000
Appartement - 7280837 2 91 m² Verkocht
Appartement - 7280839 1 71 m² Verkocht
Appartement - 7280840 1 71 m² € 250.000
Appartement - 7280844 2 85 m² Verkocht

Eerste verdieping

Eerste verdieping kamers oppervlakte prijs
Appartement - 7280845 2 84 m² Verkocht
Appartement - 7280846 2 91 m² Verkocht
Appartement - 7280848 2 91 m² Verkocht
Appartement - 7280850 2 91 m² € 345.000
Appartement - 7280851 2 91 m² Verkocht
Appartement - 7280852 2 91 m² Verkocht
Appartement - 7280854 2 91 m² € 320.000
Appartement - 7280856 2 85 m² € 300.000

Tweede verdieping

Tweede verdieping kamers oppervlakte prijs
Appartement - 7280857 2 84 m² € 305.000
Appartement - 7280860 2 91 m² Verkocht
Appartement - 7280862 2 91 m² Verkocht
Appartement - 7280863 2 91 m² Verkocht
Appartement - 7280866 2 91 m² € 329.000
Appartement - 7280867 2 91 m² € 339.000
Appartement - 7280870 2 91 m² Verkocht
Appartement - 7280872 2 85 m² € 300.000

Derde verdieping

Derde verdieping kamers oppervlakte prijs
Appartement - 7280873 2 110 m² Verkocht
Appartement - 7280874 3 135 m² Verkocht
Appartement - 7280875 3 135 m² Verkocht
Appartement - 7280879 2 110 m² Verkocht

Meer info over dit project

Bedankt voor je bericht, we contacteren je zo spoedig mogelijk.
Er was een probleem bij het versturen van het formulier, gelieve opnieuw te proberen.
U moet de algemene voorwaarden aanvaarden om dit bericht te kunnen verzenden