Appartement
€ 305.000

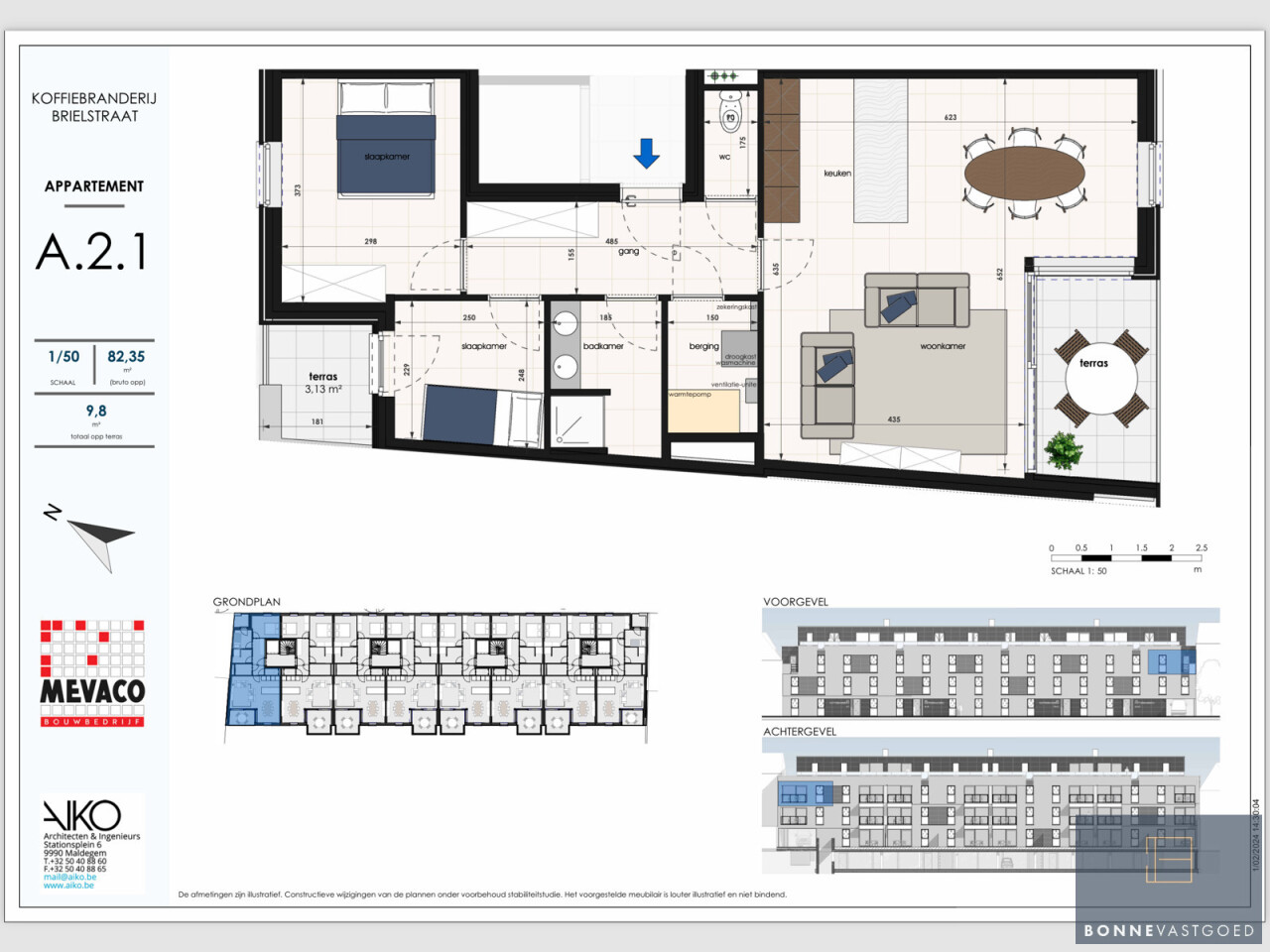
Brielstraat 2a B2.1, 9990 Maldegem
    • delen
Dit pand maakt deel uit van Park Koffiebranderij

Omschrijving Ref.: 7280857

Nieuwbouwproject met zongerichte tuin


Reeds meer dan 60% verkocht!

Binnenkort van één van deze nieuwbouw appartementen uw thuis maken, midden in het centrum van Maldegem? Dit is de kans!

Project Koffiebranderij bevindt zich in het bruisende centrum van Maldegem. Met alle faciliteiten op wandelafstand. Het project bestaat uit 23 appartementen en 4 penthouses. Langs de achterzijde kunt u genieten van een prachtig aangelegde binnentuin. Bovendien zijn de appartementen op het gelijkvloers voorzien van een privé tuintje.

Op de gelijkvloerse verdieping is er nog keuze uit 1-2 slaapkamer appartementen. Op verdieping 1 en 2 zijn dit 2 slaapkamer appartementen.
Deze zullen uiteraard aan alle hedendaagse energienormen voldoen. Ieder appartement is voorzien van GEOTHERMISCHE WARMTEPOMPEN, vloerverwarming met passieve koeling en ZONNEPANELEN. Het gebouw heeft een zuidgerichte oriëntatie waardoor je steeds kan genieten van het zonnetje vanop je terras of in je tuintje.

Ondergronds zijn zowel parkeergarages, staanplaatsen als fietsenstalling terugvinden. Bovengronds wordt nog een extra fietsenberging voorzien met parkeerplaatsen.

Bij aankoop van een appartement is het mogelijk dit helemaal op maat en naar eigen smaak in de richten. U heeft nog de mogelijkheid de vloeren, keuken, badkamer, … zelf te kiezen bij de hiervoor aangeduide leveranciers.
Vloeren/keukens op de foto's zijn ter illustratie van reeds verkocht appartementen.

Nieuwsgierig naar deze tijdloze bouw met grote raampartijen en ultiem comfort?

Contacteer Bonne Vastgoed 7 op 7 voor meer info via 0468/104040 of info@bonnevastgoed.be


Uw contact

Laurenz Bonne +32 468/10 40 40
contact

Details van het pand

Financieel

Prijs
€ 305.000,00
Onder BTW stelsel
Ja
Beschikbaarheid
Bij oplevering

Ligging

Buurt
Centraal, rustig
School nabij
Ja
Winkels nabij
Ja
Openbaar vervoer nabij
Ja

Gebouw

Bewoonbare oppervlakte
84,00 m²
Aantal gevels
2
Bouwjaar
2024
Staat
Nieuw
Verdiep
2

Terrein

Grondoppervlakte
94,00 m²

Indeling

Keuken
Ja, volledig geïnstalleerd
Badkamer type
Alle comfort
Terras
9,80 m²

Comfort

Gemeubeld
Nee
Videofoon
Ja
Lift
Ja

Energie

Type verwarming
Geothermie

Technieken

Elektriciteit
Ja
Telefoonbekabeling
Ja
Riolering
Ja
Water
Ja

Stedenbouw

Bestemming
Woongebied
Bouwvergunning
Ja
Verkavelingsvergunning
Nee
Voorkooprecht
Nee
Dagvaarding
Nee - geen rechterlijke herstelmaatregel of bestuurlijke maatregel opgelegd
O-peil
Niet gelegen in een overstromingsgevoelig gebied
P-score
A
Vonnissen
Nee
Servitude
Nee

Meer info over deze eigendom

Bedankt voor je bericht, we contacteren je zo spoedig mogelijk.
Er was een probleem bij het versturen van het formulier, gelieve opnieuw te proberen.
U moet de algemene voorwaarden aanvaarden om dit bericht te kunnen verzenden
(*) Gelieve de verplichte velden in te vullen.