Nieuw te bouwen woning - keuze modern/traditioneel mogelijk
De Twaalf Gemeten , 8310 Sint-Kruis
Omschrijving Ref.: 7145395
Altijd al alleenstaand willen bouwen in Male/Sint-Kruis? Mis deze kans niet!
Op dit zuid-west georiënteerde perceel bouwgrond kunt u nog zelf kiezen om traditioneel of modern te bouwen.
De grond is gelegen in een DOODLOPENDE STRAAT in het uiterst rustige buurt met scholen, buurtwinkel, bakker, slager, … op wandel-/fietsafstand. Daarnaast zijn de centra van Sint-Kruis en Brugge vlakbij en vlot bereikbaar via het openbaar vervoer. Leuk om weten: de bestaande bebouwing achter de bouwgrond maakt binnekort plaats voor 1 woning met tuin. Wat het zicht vanuit dit perceel ten goede komt.
Aangezien er gewerkt wordt met alle nieuwe technieken zoals lucht/water warmtepomp (vloerverwarming), zonnepanelen, ventilatiesysteem D, een doorgedreven isolatie en dergelijke komen we op een E-peil lager dan 30. Wat mee zorgt voor een lage energiefactuur. Daarnaast is er een regenwaterput van 7000L voorzien.
De indeling:
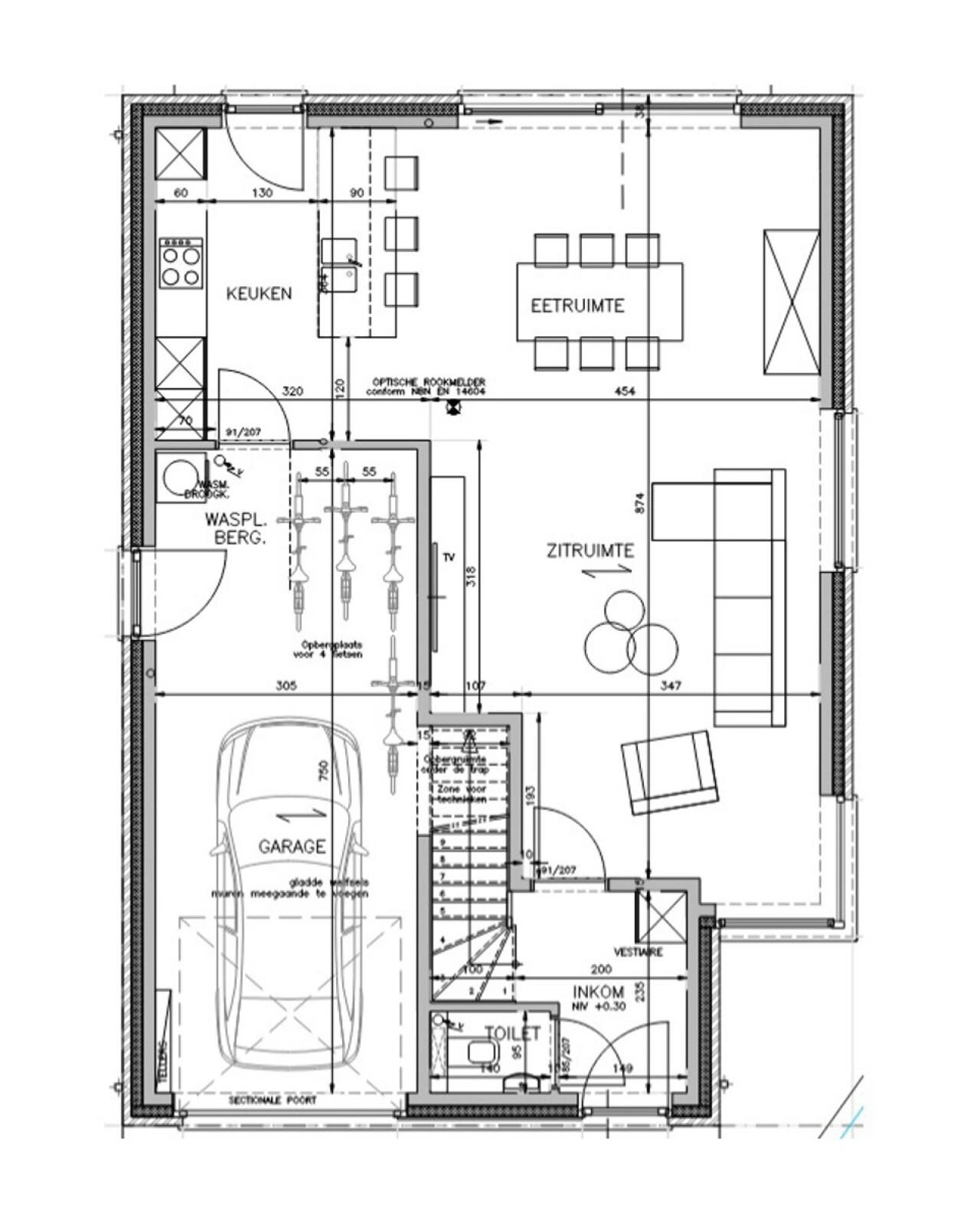
Gelijkvloers: inkom, gastentoilet, leefruimte met open keuken en garage.
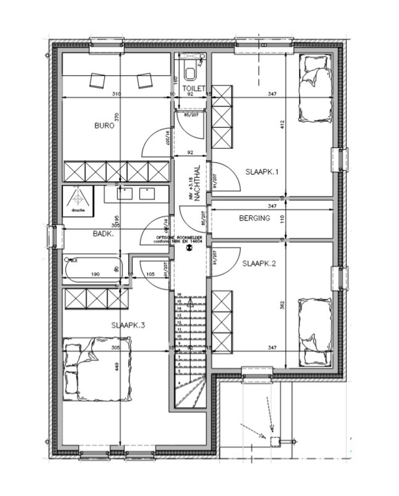
Eerste verdieping: 3 slaapkamers, toilet en badkamer (met ligbad, douche en lavabomeubel).
Binnenin kunt u nog naar eigen smaak de interieurafwerking bepalen. Aan de hand van toonzaalbezoeken kan u de woning 100% personaliseren zoals u zelf wenst.
Op dit zongerichte perceel de open bebouwing van uw keuze bouwen?
Contacteer Bonne Vastgoed 7 op 7 voor meer info via 0468/10.40.40 of info@bonnevastgoed.be
Op dit zuid-west georiënteerde perceel bouwgrond kunt u nog zelf kiezen om traditioneel of modern te bouwen.
De grond is gelegen in een DOODLOPENDE STRAAT in het uiterst rustige buurt met scholen, buurtwinkel, bakker, slager, … op wandel-/fietsafstand. Daarnaast zijn de centra van Sint-Kruis en Brugge vlakbij en vlot bereikbaar via het openbaar vervoer. Leuk om weten: de bestaande bebouwing achter de bouwgrond maakt binnekort plaats voor 1 woning met tuin. Wat het zicht vanuit dit perceel ten goede komt.
Aangezien er gewerkt wordt met alle nieuwe technieken zoals lucht/water warmtepomp (vloerverwarming), zonnepanelen, ventilatiesysteem D, een doorgedreven isolatie en dergelijke komen we op een E-peil lager dan 30. Wat mee zorgt voor een lage energiefactuur. Daarnaast is er een regenwaterput van 7000L voorzien.
De indeling:
Gelijkvloers: inkom, gastentoilet, leefruimte met open keuken en garage.
Eerste verdieping: 3 slaapkamers, toilet en badkamer (met ligbad, douche en lavabomeubel).
Binnenin kunt u nog naar eigen smaak de interieurafwerking bepalen. Aan de hand van toonzaalbezoeken kan u de woning 100% personaliseren zoals u zelf wenst.
Op dit zongerichte perceel de open bebouwing van uw keuze bouwen?
Contacteer Bonne Vastgoed 7 op 7 voor meer info via 0468/10.40.40 of info@bonnevastgoed.be
Meer info over dit project
Bedankt voor je bericht, we contacteren je zo spoedig mogelijk.
Er was een probleem bij het versturen van het formulier, gelieve opnieuw te proberen.