Individuele handelszaak
€ 595

Koningin Astridplein 34, 9900 Eeklo
    • delen

Omschrijving Ref.: 7591024

Kleinschalig, energiezuinig én budgetvriendelijk kantoor/praktijkruimte


Bent u op zoek naar een locatie waar u op kleinschalige, energiezuinige én budgetvriendelijke manier uw zaak kunt vestigen? Of bent u op zoek naar een afzonderlijke thuiswerkplaats?

De locatie langs verbindingsweg én aan de overzijde van het station zorgt voor vlotte bereikbaarheid en automatische visibiliteit.
De grote glaspartijen zorgen ervoor dat uw reclame eruit springt in het straatbeeld.

Dankzij z’n ZONNEPANELEN, WARMTEPOMP, vloer- muur en plafondisolatie,.. zijn de energiekosten voor dit appartement bijzonder laag.

Op zoek naar extra stockageruimte of gegarandeerde parkeerplaats? Het is mogelijk een garagebox te huren in het achterliggende garagecomplex.

De ruimte is momenteel nog enigszins personaliseerbaar én daarna instapklaar nog voor de zomer van 2026.

Contacteer Bonne Vastgoed voor meer info via 0468/10 40 40 of info@bonnevastgoed.be .


Uw contact

Laurenz Bonne +32 468/10 40 40
contact

Details van het pand

Financieel

Prijs
€ 595,00/maand
Beschikbaarheid
Bij oplevering

Ligging

Buurt
Handelsligging, woonkern
School nabij
Ja
Winkels nabij
Ja
Openbaar vervoer nabij
Ja

Gebouw

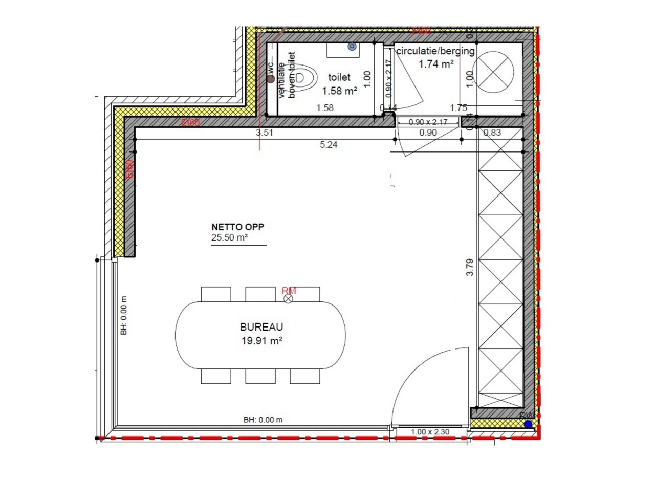
Oppervlakte
25,00 m²
Aantal gevels
2
Bouwjaar
2025
Aantal verdiepingen
5

Parkeermogelijkheden

Parkings buiten
Nee

Comfort

Air conditioning
Ja

Energie

EPC
Dubbele beglazing
Ja, thermische en akoestische onderbreking
Elektriciteitskeuring
Ja, conform
Type verwarming
Warmtepomp

Technieken

Elektriciteit
Ja
Telefoonbekabeling
Ja
Riolering
Ja
Water
Ja

Stedenbouw

Bestemming
Woongebied
Dagvaarding
Geen rechterlijke herstelmaatregel of bestuurlijke maatregel opgelegd
O-peil
Niet gelegen in een overstromingsgevoelig gebied
G-score
A
P-score
A

Meer info over deze eigendom

Bedankt voor je bericht, we contacteren je zo spoedig mogelijk.
Er was een probleem bij het versturen van het formulier, gelieve opnieuw te proberen.
(*) Gelieve de verplichte velden in te vullen.