Huis
€ 495.000

Lapscheurestraat 5, 8340 Lapscheure
    • delen

Omschrijving Ref.: 7344234

Karakterwoning onder de kerktoren van Lapscheure/Damme


Altijd al gedroomd van het authentieke dorpsleven onder de kerktoren? En dat bovendien in een gebouw dat geschiedenis ademt? Mis deze kans niet!

Deze burgerwoning met gevelbreedte van maar liefst 13m biedt u dit alles on een groene omgeving. De woning werd reeds voorzien van betonnen tussenverdiepingen, vernieuwd dak, nieuwe ramen met isolerende beglazing,…

De locatie vormt de ideale uitvalsbasis voor een fietstocht of wandeling in de natuur. Daarnaast is er een vlotte verbinding naar de winkels in Westkapelle, de zee en het binnenland via de N49.

Indeling:

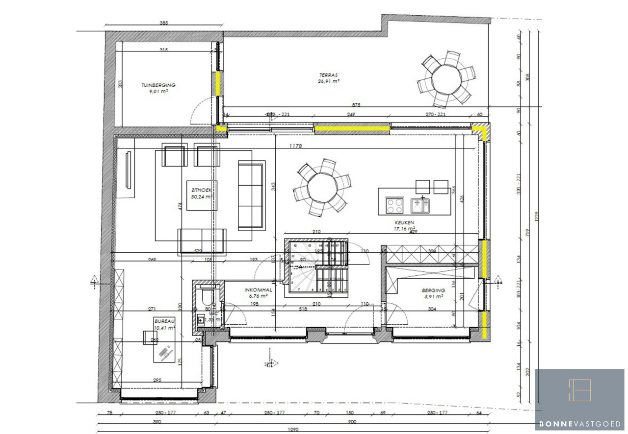
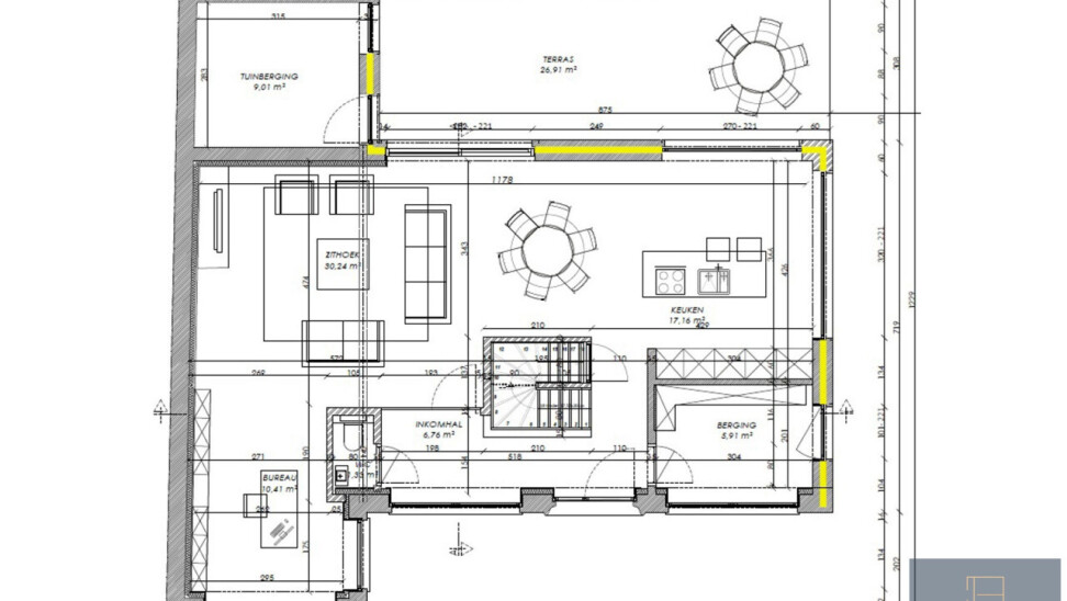
Gelijkvloers: inkom met gastentoilet, berging, leefruimte van maar liefst 58m² met zithoek, eetplaats, bureauhoek en open keuken.
Eerste verdieping: hoofdslaapkamer met eigen dressing en badkamer, 2 kinderkamers, babykamer/dressing/bureau, apart toilet en vaste trap naar tweede verdieping.
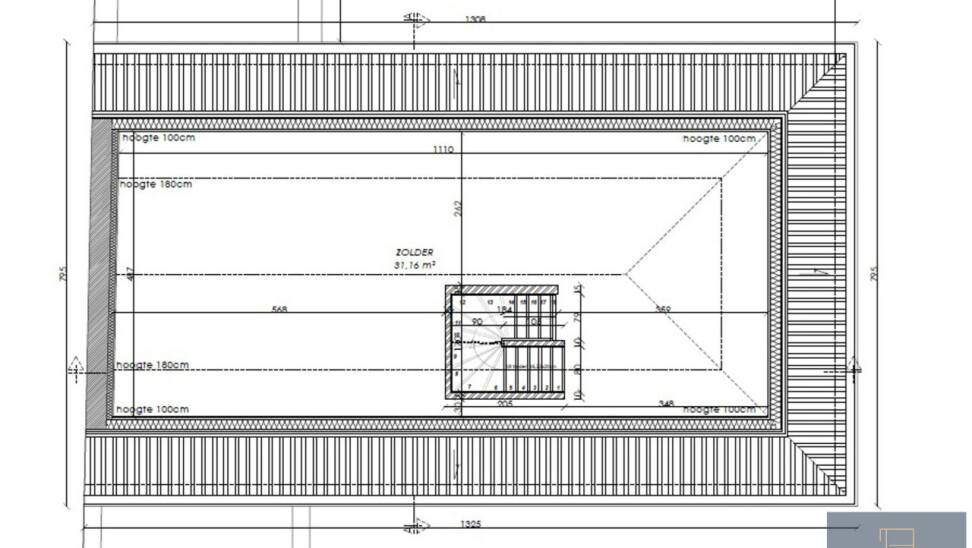
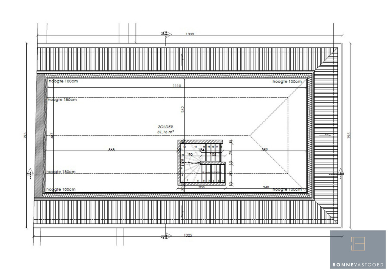
Tweede verdieping: polyvalente kamer van 31m².

Buiten: onderhoudsarme koer/dorpstuin.

Contacteer Bonne Vastgoed 7 op 7 voor meer info via 0468/10.40.40 of info@bonnevastgoed.be


Uw contact

Laurenz Bonne +32 468/10 40 40
contact

Details van het pand

Financieel

Prijs
€ 495.000,00
Beschikbaarheid
Vanaf akte

Ligging

Buurt
Rustig, woonkern
Openbaar vervoer nabij
Ja

Gebouw

Aantal gevels
3
Staat
Deels te renoveren
Oriëntatie achtergevel
West

Terrein

Grondoppervlakte
252,00 m²

Indeling

Wasplaats
Ja
Zolder
Ja

Comfort

Gemeubeld
Nee

Energie

Dubbele beglazing
Ja, thermische en akoestische onderbreking
Ramen
Pvc

Technieken

Elektriciteit
Ja
Telefoonbekabeling
Ja
Kabeltelevisie
Ja
Riolering
Ja
Gas
Ja
Water
Ja

Stedenbouw

Bestemming
Woongebied met landelijk karakter
Bouwvergunning
Ja
Verkavelingsvergunning
Nee
Voorkooprecht
Nee
Dagvaarding
Nee - geen rechterlijke herstelmaatregel of bestuurlijke maatregel opgelegd
O-peil
Niet gelegen in een overstromingsgevoelig gebied
G-score
A
P-score
C
Vonnissen
Nee
Servitude
Nee

Meer info over deze eigendom

Bedankt voor je bericht, we contacteren je zo spoedig mogelijk.
Er was een probleem bij het versturen van het formulier, gelieve opnieuw te proberen.
U moet de algemene voorwaarden aanvaarden om dit bericht te kunnen verzenden
(*) Gelieve de verplichte velden in te vullen.