Huis
€ 636.748

Hoornstraat 62+, 8340 Damme
    • delen

Omschrijving Ref.: 7627653

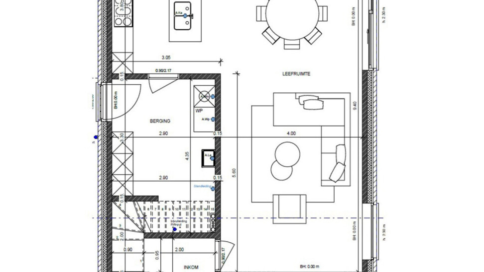
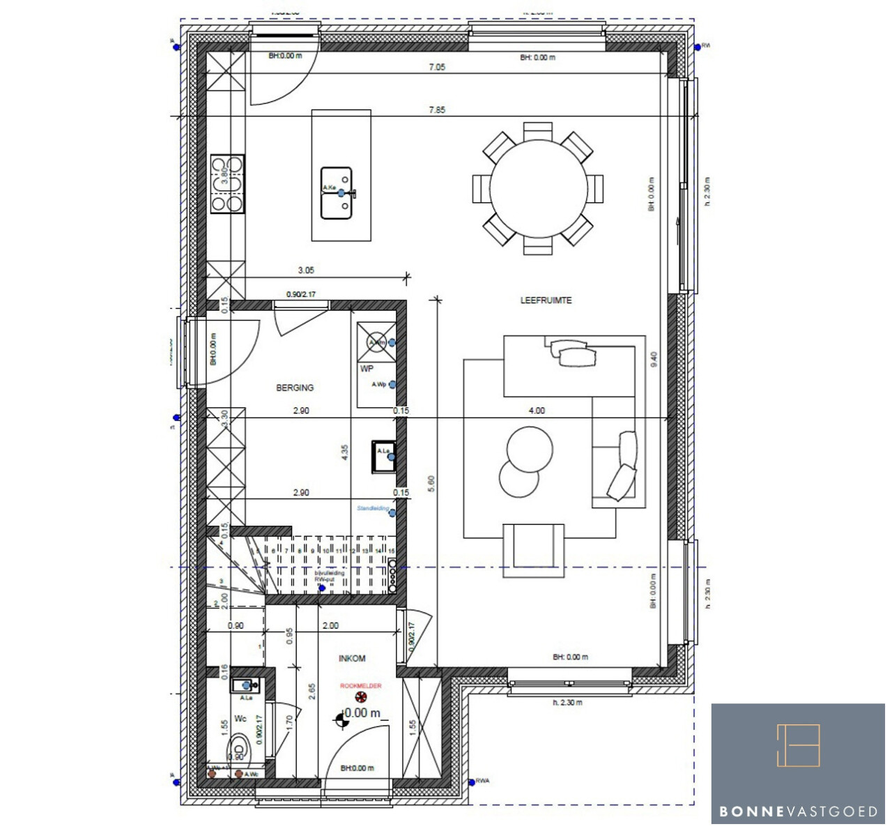
Nieuwbouw alleenstaande woning op zuidgericht perceel


Voor €306.746 exclusief 21% BTW laat u deze alleenstaande woning bouwen met lucht/water warmtepomp, zonnepannelen en conform alle isolatienormen.

De weergaves zijn van een voorbeeldwoning. U kunt de plannen naar eigen wensen creëren. Er is tevens geen verplichting aan een bouwfirma.

U kunt ook enkel de grond aankopen voor €330.000 .

De locatie vormt de ideale combinatie tussen de nabijheid van buurtwinkels, lagere scholen (Sint-Rita en Moerkerke),… én een groene omgeving met wandel en fietsmogelijkheden naar hartenlust. De nieuwe aansluiting op A11-E34 zorgt voor vlotte verbinding naar de kust en het binnenland.

Bouwmogelijkheden woning:
-Bouwdiepte gelijkvloers: indien 1 bouwlaag: max. 20 meter, indien 2 bouwlagen: max. 15 meter
-Bouwdiepte eerste verdieping: max. 12 meter

Bouwmogelijkheden bijgebouw:
-oppervlakte: max. 50m²
-nokhoogte: max. 5 meter

Bent u op zoek naar een nieuw te bouwen alleenstaande nieuwbouwwoning?

Contacteer Bonne Vastgoed 7 op 7 via 050/73.73.73 of info@bonnevastgoed.be


Uw contact

Laurenz Bonne +32 468/10 40 40
contact

Details van het pand

Financieel

Prijs
€ 636.748,00
Onder BTW stelsel
Ja
Beschikbaarheid
Vanaf akte

Ligging

Buurt
Residentiële wijk, woonkern
School nabij
Ja
Winkels nabij
Ja
Openbaar vervoer nabij
Ja

Gebouw

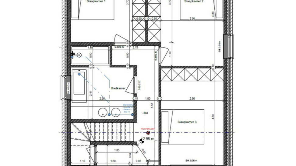
Bewoonbare oppervlakte
175,00 m²
Aantal gevels
4
Bouwjaar
2026

Terrein

Grondoppervlakte
954,00 m²
Tuin
Ja

Parkeermogelijkheden

Parkings buiten
Ja
Parkings binnen
Ja

Indeling

Keuken
Ja, volledig geïnstalleerd
Badkamer type
Douche en ligbad
Zolder
Ja

Comfort

Gemeubeld
Nee

Energie

Dubbele beglazing
Ja, thermische en akoestische onderbreking
Ramen
Pvc
Elektriciteitskeuring
Ja, conform
Type verwarming
Warmtepomp
Regenwaterput
Ja

Technieken

Elektriciteit
Ja
Telefoonbekabeling
Ja
Kabeltelevisie
Ja
Riolering
Ja
Gas
Ja
Water
Ja

Stedenbouw

Bouwvergunning
Nee
Bestemming
Woongebied
Dagvaarding
Nee - geen rechterlijke herstelmaatregel of bestuurlijke maatregel opgelegd
Voorkooprecht
Nee
Verkavelingsvergunning
Ja
O-peil
Niet gelegen in een overstromingsgevoelig gebied
P-score
A
Vonnissen
Nee
Servitude
Nee

Meer info over deze eigendom

Bedankt voor je bericht, we contacteren je zo spoedig mogelijk.
Er was een probleem bij het versturen van het formulier, gelieve opnieuw te proberen.
(*) Gelieve de verplichte velden in te vullen.