Huis
€ 641.748

Astridlaan 492, 8310 Assebroek
    • delen

Omschrijving Ref.: 7627640

Nieuwbouw alleenstaande woning op zuidgericht perceel


Bent u op zoek naar een alleenstaande nieuwbouwwoning?
Vanaf €306.748 exclusief BTW laat u deze alleenstaande woning bouwen met lucht/water warmtepomp, zonnepannelen en conform alle isolatienormen.

De weergaves zijn van een voorbeeldwoning. U kunt de plannen naar eigen wensen creëren. Er is tevens geen verplichting aan een bouwfirma.
U kunt ook enkel de grond aankopen voor €335.000 .

Vanuit deze locatie geniet u van een vlotte verbinding met het centrum van Brugge en de E40 via Beernem.

Bouwmogelijkheden:
-vrijstaande woning met 1 verdieping + dak of 2 verdiepingen + dak.

Bebouwbare oppervlakte woning:
-maximum 220m² gelijkvloers indien 1 bouwlaag + dak.
-maximum 154m² gelijkvloers indien 2 bouwlagen + dak.

Breedte bebouwing:
-maximum 11 meter.

Diepte bebouwing:
-maximum 14 meter voor woning met 2 bouwlagen
-maximum 20 meter voor een woning met 1 bouwlaag

Bouwmogelijkheden bijgebouw:
-maximale oppervlakte van 30m² en maximale hoogte van 3 meter.

Deze locatie is hét ideale vertrekpunt voor een wandeling of fietstocht in de natuur (Assebroekse Meersen,..). De overzijde van de straat is agrarisch gebied.

Graag meer info of een bezoek ter plaatse?

Contacteer Bonne Vastgoed 7 op 7 via 050/73.73.73 of info@bonnevastgoed.be


Uw contact

Laurenz Bonne +32 468/10 40 40
contact

Details van het pand

Financieel

Prijs
€ 641.748,00
Onder BTW stelsel
Ja
Beschikbaarheid
Vanaf akte

Ligging

Buurt
Residentiële wijk, woonkern
School nabij
Ja
Winkels nabij
Ja
Openbaar vervoer nabij
Ja

Gebouw

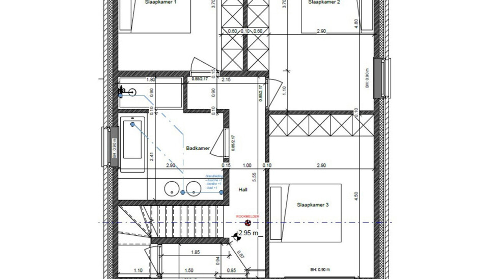
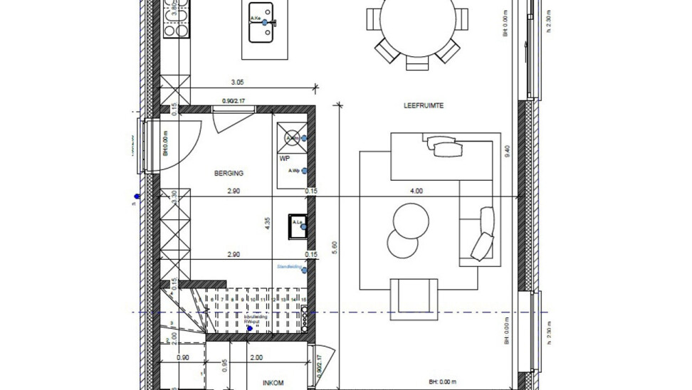
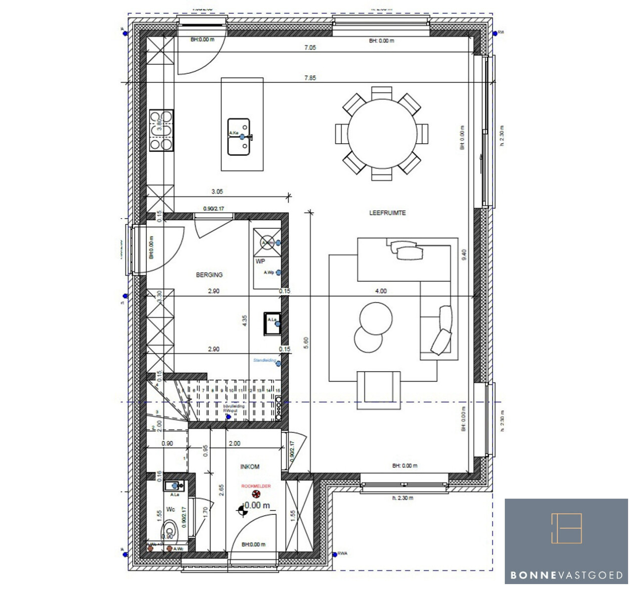
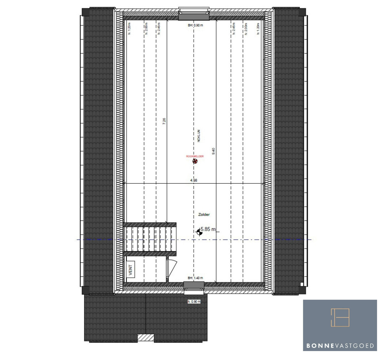
Bewoonbare oppervlakte
175,00 m²
Aantal gevels
4
Bouwjaar
2025

Terrein

Grondoppervlakte
771,00 m²
Tuin
Ja

Parkeermogelijkheden

Parkings buiten
Ja

Indeling

Keuken
Ja, volledig geïnstalleerd
Badkamer type
Douche en ligbad
Zolder
Ja

Comfort

Gemeubeld
Nee

Energie

EPC
Dubbele beglazing
Ja, thermische en akoestische onderbreking
Ramen
Pvc
Elektriciteitskeuring
Ja, conform
Type verwarming
Warmtepomp
Regenwaterput
Ja

Technieken

Elektriciteit
Ja
Telefoonbekabeling
Ja
Kabeltelevisie
Ja
Riolering
Ja
Gas
Ja
Water
Ja

Stedenbouw

Bestemming
Woongebied
Bouwvergunning
Nee
Verkavelingsvergunning
Ja
Voorkooprecht
Nee
Dagvaarding
Nee - geen rechterlijke herstelmaatregel of bestuurlijke maatregel opgelegd
O-peil
Niet gelegen in een overstromingsgevoelig gebied
P-score
A
Vonnissen
Nee
Servitude
Nee

Meer info over deze eigendom

Bedankt voor je bericht, we contacteren je zo spoedig mogelijk.
Er was een probleem bij het versturen van het formulier, gelieve opnieuw te proberen.
(*) Gelieve de verplichte velden in te vullen.