Koppelvilla
€ 579.075

Stationsstraat 154, 8340 Sijsele
    • delen

Omschrijving Ref.: 7177451

Nieuwbouw op zongericht perceel van 450m² - instapklaar bij akte


Bent u op zoek naar een nieuwbouwwoning en MAG HET IETS MEER ZIJN QUA GRONDOPPERVLAKTE? Deze woning is gelegen op een perceel van 450m² en biedt u steeds een plaats in de zon. ’s Ochtends in de tuin, ‘s middags en ’s avonds in de leefruimtes, tuin en terras.

De woning wordt gebouwd volgens de meest recente normen met warmtepomp, zonnepanelen, ventilatie D, isolerende beglazing,… De keuken, badkamer, vloeren, … kunnen nog gekozen worden. Daarnaast is een externe garage van 28m² inbegrepen die groot genoeg is voor zowel voor een wagen als tuingerief, berging,…

De ligging te Sijsele biedt u alle winkels op wandelafstand en vlotte verbinding naar Brugge, de kust, Maldegem,…

De woning is ingedeeld in:
Gelijkvloers: inkomhal, gastentoilet, lichtrijke leefruimte (47m² - met zithoek, eetplaats en open keuken). Verder is een ruime berging met wasplaats en achterdeur op het gelijkvloers te vinden.
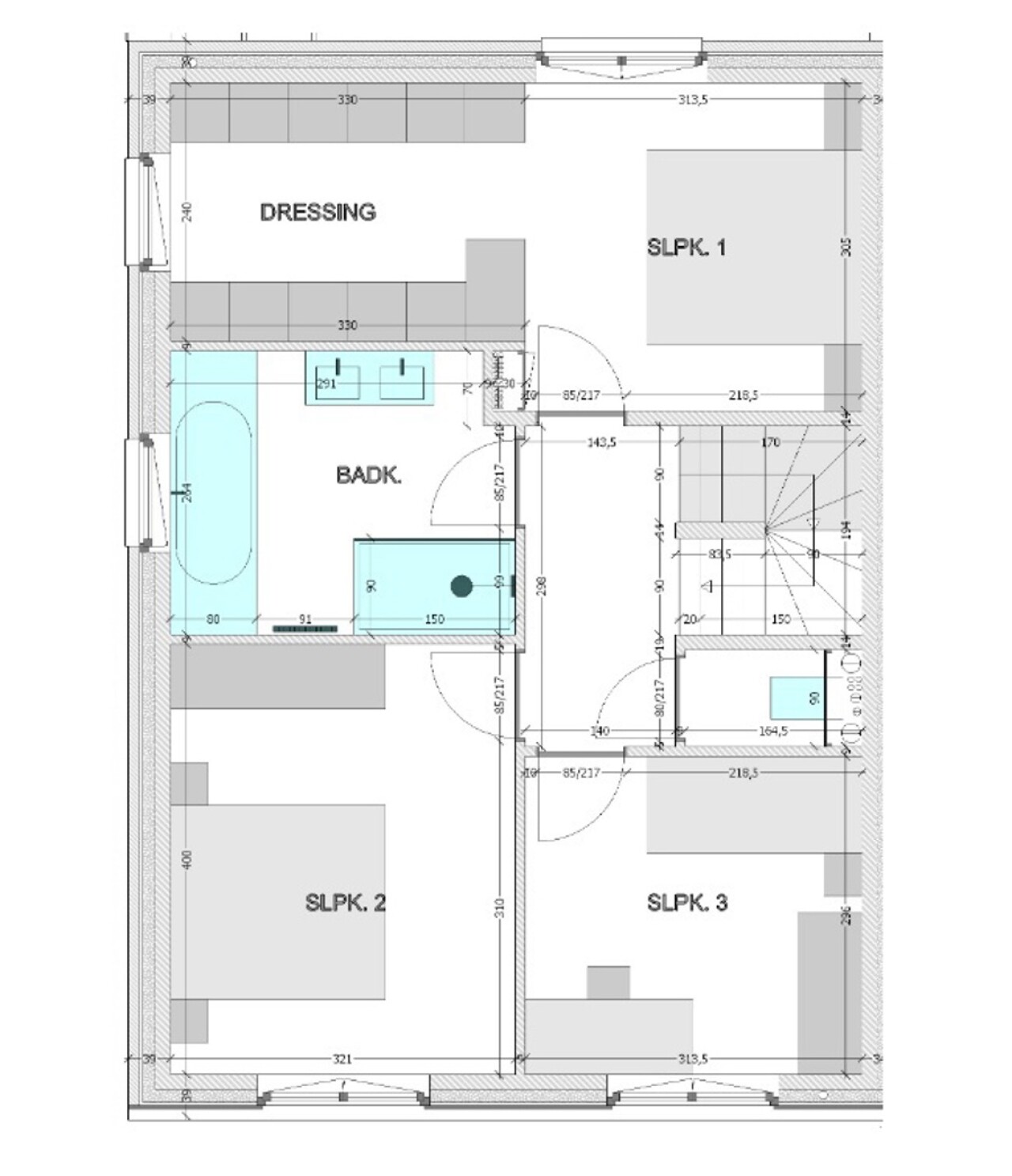
Eerste verdieping: hoofdslaapkamer (17m² - met plaats voor dressing), 2 kinderkamers (13 en 9,5m²), toilet en badkamer (met inloopdouche, ligbad, dubbel lavabomeubel). Daarnaast is een vaste trap naar de 2de verdieping voorzien.
Tweede verdieping: polyvalente ruimte van 28m² met mogelijkheid tot 4de slaapkamer (leidingen voorzien).

Buiten: de afsluiting van de tuin is inbegrepen in de prijs.

Binnenkort uw intrek nemen in deze gloednieuwe woning?

Contacteer Bonne Vastgoed 7 op 7 voor meer info of bezoek via 050/73.73.73 of info@bonnevastgoed.be .


Uw contact

Laurenz Bonne +32 468/10 40 40
contact

Details van het pand

Financieel

Prijs
€ 579.075,00
Onder BTW stelsel
Ja
Beschikbaarheid
Vanaf akte

Ligging

Buurt
Woonkern, centraal
School nabij
Ja
Winkels nabij
Ja
Openbaar vervoer nabij
Ja

Gebouw

Bewoonbare oppervlakte
200,00 m²
Aantal gevels
3
Bouwjaar
2025
Staat
Nieuw
Oriëntatie achtergevel
West

Terrein

Grondoppervlakte
450,00 m²
Tuin
Ja
Oriëntatie terras 1
Zuidwesten

Parkeermogelijkheden

Garage
1
Parkings buiten
2
Parkings binnen
1

Indeling

Woonkamer
47,00 m²
Keuken
Ja, volledig geïnstalleerd
Slaapkamer 1
17,00 m²
Slaapkamer 2
13,00 m²
Slaapkamer 3
9,50 m²
Slaapkamer 4
28,00 m²
Badkamer type
Douche en ligbad
Wasplaats
Ja
Zolder
Ja

Comfort

Gemeubeld
Nee

Energie

EPC
Dubbele beglazing
Ja, thermische en akoestische onderbreking
Ramen
Pvc
Elektriciteitskeuring
Ja, conform
Type verwarming
Warmtepomp
Regenwaterput
Ja

Technieken

Elektriciteit
Ja
Telefoonbekabeling
Ja
Kabeltelevisie
Ja
Riolering
Ja
Water
Ja

Stedenbouw

Bestemming
Woongebied
Bouwvergunning
Ja
Verkavelingsvergunning
Ja
Voorkooprecht
Nee
Dagvaarding
Nee - geen rechterlijke herstelmaatregel of bestuurlijke maatregel opgelegd
O-peil
Niet gelegen in een overstromingsgevoelig gebied
P-score
C
Vonnissen
Nee
Servitude
Nee

Meer info over deze eigendom

Bedankt voor je bericht, we contacteren je zo spoedig mogelijk.
Er was een probleem bij het versturen van het formulier, gelieve opnieuw te proberen.
U moet de algemene voorwaarden aanvaarden om dit bericht te kunnen verzenden
(*) Gelieve de verplichte velden in te vullen.