Bel-etage
€ 1.300

Aalterbaan 214 B0101, 9990 Maldegem
    • delen

Omschrijving Ref.: 7674123

Nieuwbouw duplex van 175m² + 12m² zongericht terras


Nieuwbouwappartementen met hoge afwerkingsgraad op centrale locatie.

Dankzij z’n ZONNEPANELEN, WARMTEPOMP, vloer- muur en plafondisolatie, ventilatie D,.. én z’n zonoriëntatie zijn de energiekosten voor dit appartement bijzonder laag.

Het appartement is ingedeeld in:
-Gelijkvloers: private traphal met opbergmogelijkheid, plaats voor schoenkast,…
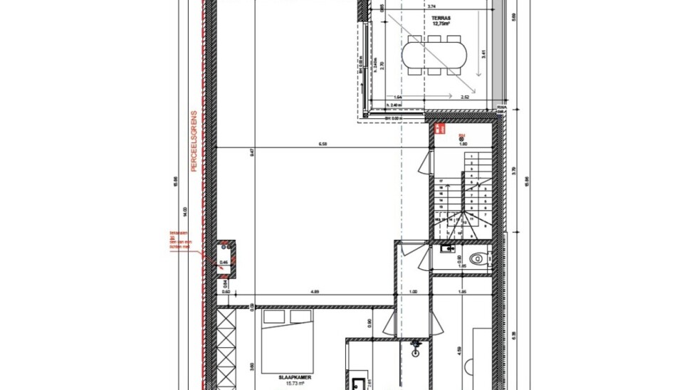
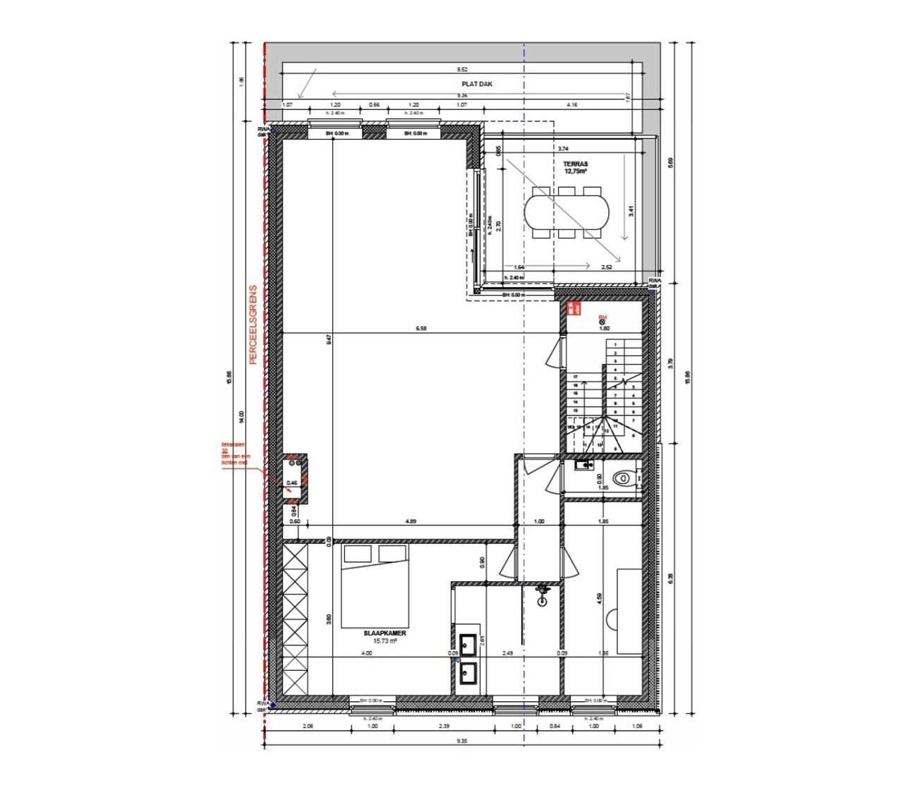
-Eerste verdieping: leefruimte met open kwaliteitskeuken (keramisch werkblad en Siemens toestellen: kookplaat, dampkap, oven, micro, vaatwas en spoelzone), slaapkamer 1 met ensuite badkamer, apart toilet, bureau/dressing/logeerkamer/… en terras (12m²).
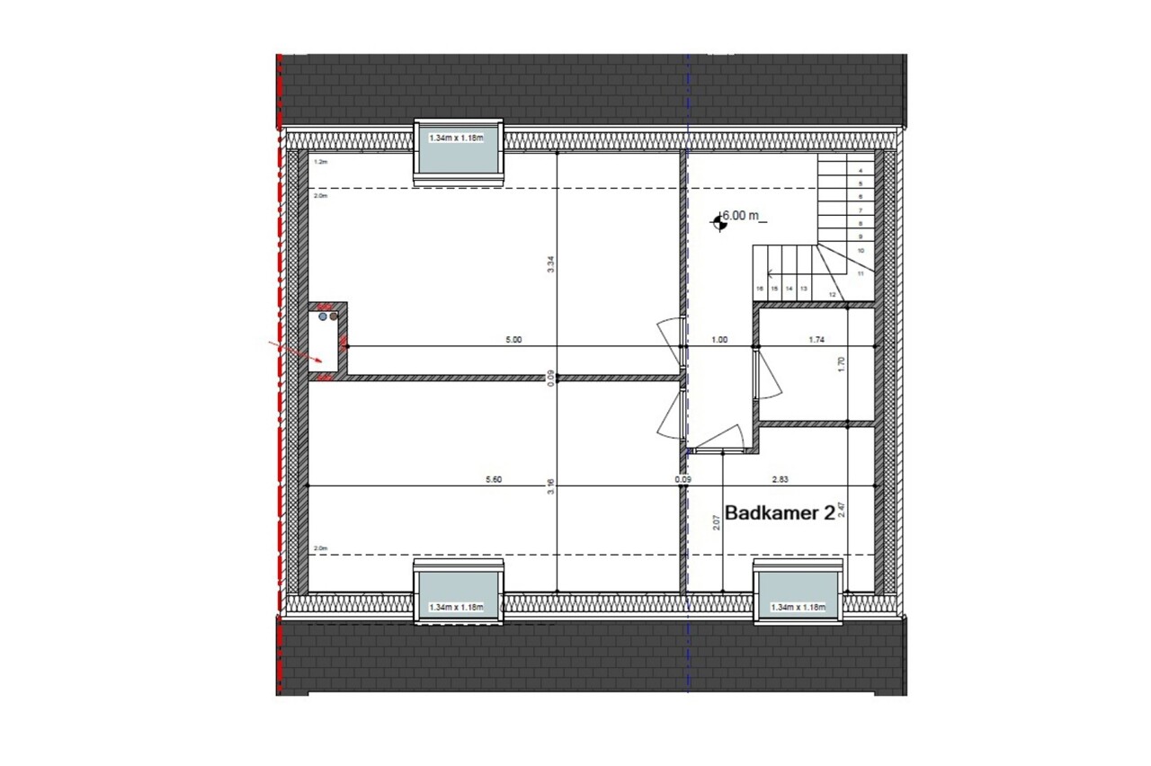
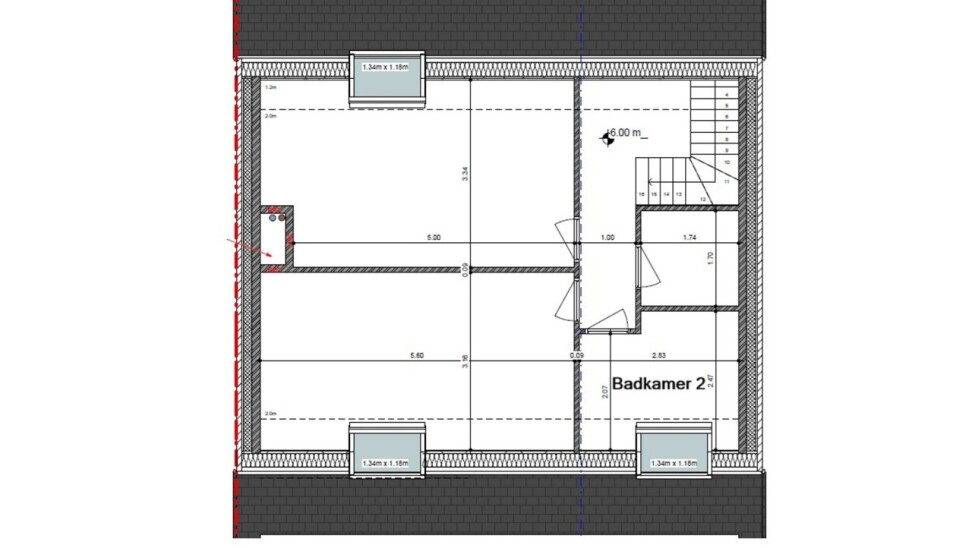
-Tweede verdieping: slaapverdieping met 2 slaapkamers, badkamer met douche en berging.

Het appartement wordt geschilderd afgeleverd.

Instapklaar 1 juli 2026.

Er zijn GEEN GEMEENSCHAPPELIJKE KOSTEN om rekening mee te houden.

Van dit gloednieuwe, energiezuinige appartement met zongericht terras uw nieuwe thuis maken?

Contacteer Bonne Vastgoed voor meer info via 0468/10 40 40 of info@bonnevastgoed.be .


Uw contact

Laurenz Bonne +32 468/10 40 40
contact

Details van het pand

Financieel

Prijs
€ 1.300,00/maand
Beschikbaarheid datum
01 Juli 2026

Ligging

Buurt
Centraal, Vrij zicht
School nabij
Ja
Winkels nabij
Ja
Openbaar vervoer nabij
Ja
Autosnelweg nabij
Ja

Gebouw

Bewoonbare oppervlakte
175,00 m²
Aantal gevels
4
Bouwjaar
2025
Staat
Nieuw
Verdiep
1
Aantal verdiepingen
2
Oriëntatie voorgevel
Zuid

Terrein

Grondoppervlakte
187,00 m²

Indeling

Keuken
Ja, volledig geïnstalleerd
Badkamer type
Douche
Douchekamers
2
Toiletten
2
Wasplaats
Ja

Comfort

Gemeubeld
Nee

Energie

EPC
Dubbele beglazing
Ja, thermische en akoestische onderbreking
Ramen
Aluminium
Elektriciteitskeuring
Ja, conform
Type verwarming
Warmtepomp

Technieken

Elektriciteit
Ja
Kabeltelevisie
Ja
Riolering
Ja
Gas
Nee
Water
Ja

Stedenbouw

Bestemming
Woongebied
Dagvaarding
Geen rechterlijke herstelmaatregel of bestuurlijke maatregel opgelegd
O-peil
Niet gelegen in een overstromingsgevoelig gebied
G-score
A
P-score
A
Servitude
Nee
Bestuursmaatregelen in het maatregelenregister
Nee

Meer info over deze eigendom

Bedankt voor je bericht, we contacteren je zo spoedig mogelijk.
Er was een probleem bij het versturen van het formulier, gelieve opnieuw te proberen.
(*) Gelieve de verplichte velden in te vullen.